Rue de l’Est
1030 Bruxelles
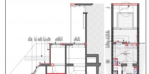
Rue de l'Est 25
Rénovation complète d’une maison unifamiliale, isolation de façade et toiture. Renforcement du mur mitoyen
Plans
Gros Oeuvre
- Renforcement des fondations
- Égouttage
- Stabilité
- Construction de murs
Façade
- Isolation par l’extérieur
- Placement de seuil en aluminium
- Garde-Corps
Toiture
- Isolation par l’extérieur
- Nouvelle toiture
- Nouveaux Velux
Parachèvements
- Enduis
- Mise en peinture
- Carrelage
- Plancher, ponçage
- Faux-Plafonds
- Cloisonnage





























































